轻骑帐篷以其简约的A字形设计和舒适的内部布局,为客人提供一个与自然和谐共处的独特住宿体验。帐篷采用高品质的材料和坚固的结构,确保在各种天气条件下提供可靠的保护。
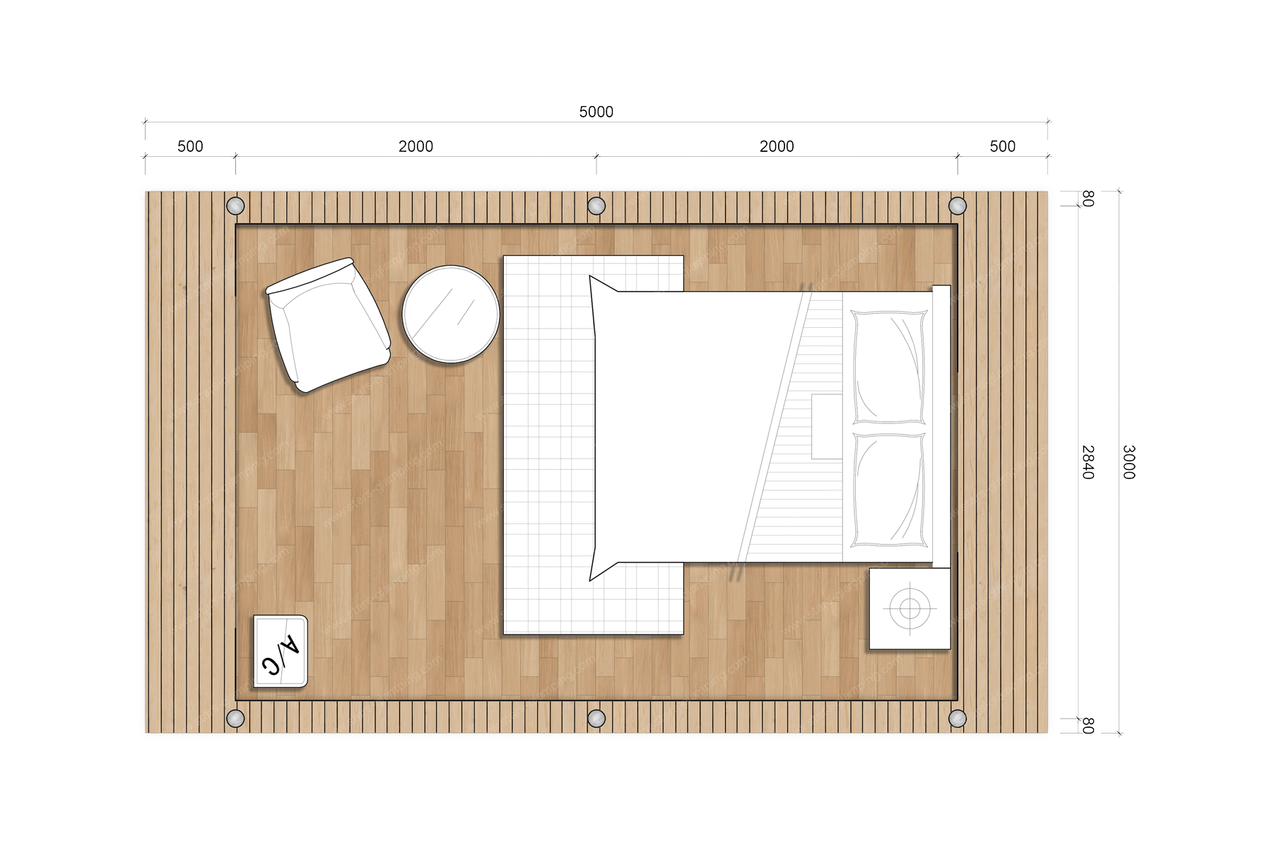
内部空间精心设计,布局合理。宽敞的卧室区域配有豪华床铺,提供极致的睡眠体验。起居区设有舒适的座椅和小桌,为客人提供一个放松和享受的空间。透明的大窗户设计,使得帐篷内的光线充足,同时也能让客人欣赏到户外的美景。
帐篷的露台区域宽敞,是享受户外时光的理想场所,无论是晨间的咖啡时光还是夜晚的星空欣赏,都能为客人带来独特的体验。
轻骑帐篷不仅提供了一个舒适的住宿空间,更为客人创造了一个与自然亲密接触的独特体验,让他们在您的酒店或度假村留下难忘的回忆。选择轻骑帐篷,为您的住宿设施增添更多魅力,吸引更多追求独特和奢华体验的客人。









